Familia 144
Toskana-LIne
Leben. Lieben. Luca.
Ein modernes Stadthaus im Toskana-Stil: Unser Luca 134 bietet Ihnen viele Highlights: 2 gleich große Kinderzimmer für Ihre Lieben, einen lichtdurchfluteten Wohnbereich mit offener Küche für gemütliche Abende in geselliger Runde. Das Schlafzimmer, mit anliegender Ankleide, hat einen direkten Zugang zum Badezimmer. Das Einfamilienhaus Luca bietet Ihnen viel Luxus mit südlichem Flair - la dolce vita.

HIGHLIGHTS
• Großzügiger Grundriss
• Viele Fensterflächen
• Große Kinderzimmer
• Vorratsraum direkt an der Küche
• Offener Wohnbereich
FLÄCHE
Gesamtfläche 144,23 m²
Erdgeschoss 69,42 m²
Dachgeschoss 64,83 m²
Dachgeschoss 64,83 m²
GRUNDRISSE


Kurzbeschreibung:
Wohnflächenberechnung:
· 4,5 Zimmer
· 133 m² Wohnfläche nach DIN 277
· 9,36 x 9,36 m Grundfläche
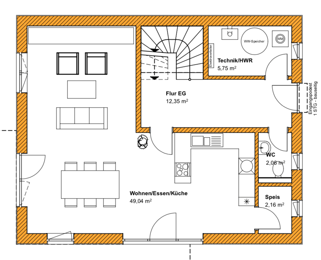
Wohnfläche Erdgeschoss EG 71,38 m²
Technik/HWR 5,75 m²Flur EG 12,35 m²
WC 2,08 m²
Speis 2,16 m²
Wohnen/Essen/Küche 49,04 m²
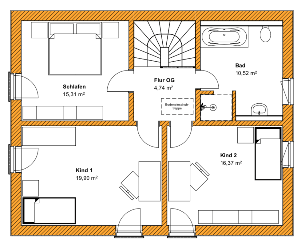
Wohnfläche Dachgeschoss OG 66,84 m²
Badezimmer 10,52 m²
Schlafzimmer 15,31 m²
Flur OG 4,74 m²
Kind 1: 19,90 m²
Kind 2: 16,37 m²
Grundausstattung:
• Außenwände in Ziegel 36,5 cm Lambda 0,09 W/m2K
• Massive Innenwände, auch im DG
• 3-Scheibenverglasung
• Fußbodenheizung
• Außenwände in Ziegel 36,5 cm Lambda 0,09 W/m2K
• Massive Innenwände, auch im DG
• 3-Scheibenverglasung
• Fußbodenheizung
• Luft-Wärmepumpe
• Lüftungsanlage mit Wärmerückgewinnung
• Moderne, hochwertige Badlandschaft inklusive bodentiefer
• Lüftungsanlage mit Wärmerückgewinnung
• Moderne, hochwertige Badlandschaft inklusive bodentiefer
Dusche 120 x 100 cm
Wohngesundheit ist uns sehr wichtig. Wir verwenden ökologische und hochwertige Materialien und bauen zukunftsorientiert. Damit Sie auch über Generationen hinweg Freude an Ihrer Immobilie haben.
Abbildungen/Grundrisse enthalten Sonderwünsche. Die Einrichtungsgegenstände und Bodenbeläge (außer Bodenbeläge im Bad und WC) sind nicht in unseren Leistungen enthalten. Änderungen bleiben vorbehalten. Jedes Haus ist auch mit Keller erhältlich. Bei Häusern mit Keller sind die Grundrisse zum Teil anders gestaltet.
• Innenmalarbeiten inklusive
Nachhaltigkeit:










