Bungalow 88
 BUNGALOW LINE
 Viel Leben auf einer Ebene
 Bis ins hohe Alter im eigenen Haus wohnen, der kompakte Bungalow bietet den Komfort einer Wohnung im eigenen Haus. Ideal für alle die auch im Alter auf Ihren Individualismus nicht verzichten möchten. Die großen Fenster lassen nicht nur viel Licht herein sondern verbinden innen und außen. Das Pultdach verleiht dem Bungalow seinen modernen Charakter.
Freiheit, in den eigenen vier Wänden leben, obwohl die Bewegungsfreiheit eingeschränkt ist. Gerne bauen wir den Bungalow barrierefrei.
Bungalow 88,47 m²


HIGHLIGHTS
• Wohnung im eigenen Haus
• Geräumiges Schlafzimmer 
•	Bodentiefe Fenster im Wohn- und Schlafzimmer  
•	Großzügiger Grundriss 
FLÄCHE
Gesamtfläche 88,47 m²
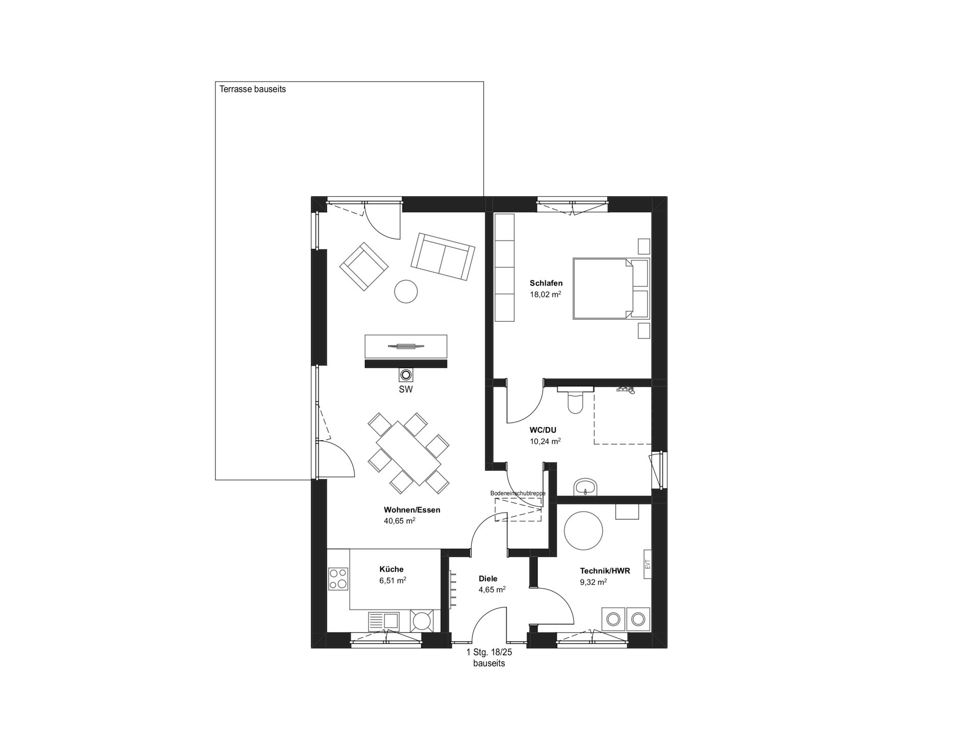
GRUNDRISSE


Grundriss 1 Variante ohne Keller, Grundriss 2 barrierefrei ohne Keller - Abbildungen und Grundrisse können Sonderwünsche enthalten.
Kurzbeschreibung:
Wohnflächenberechnung:
Technik/HWR 7,67 m²
Flur EG 4,68 m²
Wohnen/Essen/Küche 41,68 m²
· 2 Zimmer
· 88,47 m² Wohnfläche nach DIN 277
· 11,74 x 9,24 m Grundfläche
Flur EG 4,68 m²
Wohnen/Essen/Küche 41,68 m²
Küche 6,51 m²
 
Badezimmer 11,96 m²
Schlafzimmer 15,97 m²
Schlafzimmer 15,97 m²
Grundausstattung:
• Außenwände in Ziegel 36,5 cm Lambda 0,09 W/m2K
• Massive Innenwände, auch im DG
• 3-Scheibenverglasung
• Fußbodenheizung
• Außenwände in Ziegel 36,5 cm Lambda 0,09 W/m2K
• Massive Innenwände, auch im DG
• 3-Scheibenverglasung
• Fußbodenheizung
•    Luft-Wärmepumpe
• Lüftungsanlage mit Wärmerückgewinnung
• Moderne, hochwertige Badlandschaft
 
• Lüftungsanlage mit Wärmerückgewinnung
• Moderne, hochwertige Badlandschaft
•    Alu-Haustüre
• Innenmalerarbeiten inklusive
Wohngesundheit ist uns sehr wichtig. Wir verwenden ökologische und hochwertige Materialien und bauen zukunftsorientiert. Damit Sie auch über Generationen hinweg Freude an Ihrer Immobilie haben.
 
• Innenmalerarbeiten inklusive
Nachhaltigkeit:
Abbildungen/Grundrisse enthalten Sonderwünsche. Die Einrichtungsgegenstände und Bodenbeläge (außer Bodenbeläge im Bad und WC) sind nicht in unseren Leistungen enthalten. Änderungen bleiben vorbehalten. Jedes Haus ist auch mit Keller erhältlich. Bei Häusern mit Keller sind die Grundrisse zum Teil anders gestaltet.




