NEW CLASSIC 144
DOUBLE LINE
Viel Platz für die ganze Familie
Gemeinsam kochen, den neuesten Blockbuster schauen oder wetteifern bei der Spielekonsole. Im nahezu quadratischen Erdgeschoß dreht sich alles um die gemeinsamen Aktivitäten der Familie. Machen Sie im Sommer Ihren Garten zum Outdoor-Wohnzimmer und erweitern Sie Ihren Wohnbereich. Auf der Terrasse lassen sich laue Sommerabende herrlich entspannt verbringen. Das Obergeschoß hält drei Räume und das Bad bereit. Ein flexibel nutzbares Studio erweitert den dritten Raum im Obergeschoß. Nutzen Sie diese wertvolle Raumreserve z. B. als Relax- und Wellnessbereich für Hobbys, als Atelier oder erfüllen Sie einen Teenagertraum und machen den Wunsch nach einem großen, zweigeschossigen Zimmer war.
Doppelhaushälfte NEW CLASSIC 144 m²
HIGHLIGHTS
• 2 Vollgeschosse plus Studio
• Zusätzlicher Raum im Erdgeschoss möglich (Bei Variante mit Keller)
• Schornstein möglich (Sonderwunsch)
• Kellergeschoss möglich
• Zusätzlicher Raum im Erdgeschoss möglich (Bei Variante mit Keller)
• Schornstein möglich (Sonderwunsch)
• Kellergeschoss möglich
FLÄCHE
Gesamtfläche 145,22 m²
Erdgeschoss 65,51 m²
Obergeschoss 59,63 m²
Studio 20,08 m²
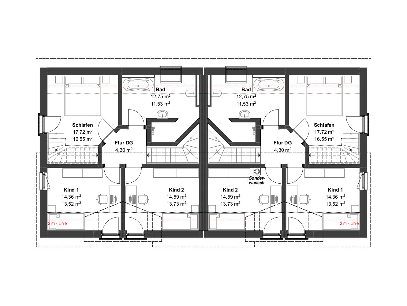
GRUNDRISSE



Beispiel Grundriss mit Keller


Beispiel Grundriss - bei Variante ohne Keller wird das Büro zum Technik-/Hauswirtschaftsraum
Kurzbeschreibung:
Wohnflächenberechnung:
Flur EG 19,16 m²
Speis 3,18 m²
Wohnen/Essen/Kochen 41,35 m²
Wohnfläche Dachgeschoss 30,86 m²
Studio 30,86 m²
· 4,5 Zimmer + Studio
· 145,22 m² Wohnfläche nach DIN 277
· ca. 9,24 x 9,36 m Grundfläche
Wohnfläche Erdgeschoss 65,51 m² (Variante mit Keller)
WC 1,82 m²Flur EG 19,16 m²
Speis 3,18 m²
Wohnen/Essen/Kochen 41,35 m²
Wohnfläche Obergeschoss 45,53 m²
Eltern 16,55m²
Badezimmer 11,53 m²
Flur OG 4,30 m²
Kind 1 13,52 m²
Kind 2 13,73 m²
Badezimmer 11,53 m²
Flur OG 4,30 m²
Kind 1 13,52 m²
Kind 2 13,73 m²
Wohnfläche Dachgeschoss 30,86 m²
Studio 30,86 m²
Grundausstattung:
• Ausgebautes Studio im DG
• Massive Innenwände, auch im DG
• 3-Scheibenverglasung
• Fußbodenheizung
• Ausgebautes Studio im DG
• Massive Innenwände, auch im DG
• 3-Scheibenverglasung
• Fußbodenheizung
• Luft-Wärmepumpe
• Lüftungsanlage mit Wärmerückgewinnung
• Moderne Badlandschaft
• Innenmalerarbeiten inklusive
Nachhaltigkeit:
Wohngesundheit ist uns sehr wichtig. Wir verwenden ökologische und hochwertige Materialien und bauen zukunftsorientiert. Damit Sie auch über Generationen hinweg Freude an Ihrer Immobilie haben.
Abbildungen / Grundrisse enthalten Sonderwünsche. Die Einrichtungsgegenstände und Bodenbelege (außer Bodenbelege im Bad und WC) sind nicht in unseren Leistungen enthalten. Änderungen bleiben vorbehalten. Jedes Haus ist auch mit Keller erhältlich.
• Lüftungsanlage mit Wärmerückgewinnung
• Moderne Badlandschaft
• Innenmalerarbeiten inklusive
Technische Daten:
• Halbgewendelte Treppen (innenliegend)
• Dachform: Satteldach
• Dachform: Satteldach
• Außenwände in Ziegel 36,5 cm Lambda 0,09 W/m2K
Nachhaltigkeit:
Wohngesundheit ist uns sehr wichtig. Wir verwenden ökologische und hochwertige Materialien und bauen zukunftsorientiert. Damit Sie auch über Generationen hinweg Freude an Ihrer Immobilie haben.








