Style 122
DOUBLE LINE
Wenn das Traumhaus Wirklichkeit wird
Sich den Wunsch vom eigenen Heim erfüllen. Einen Ort zum Wohlfühlen haben, in dem die eigenen Träume wahr werden. Mit dem Ziegelmassivhaus Style 122 aus unserer Style Line (Doppel- und Reihenhäuser) wird das möglich. Es kombiniert die Vorteile einer Doppelhausbebauung (z. B. verringerte Heizkosten, optimale Gartenflächennutzung) mit viel Platz für Ihre individuelle Freiheit. Das moderne Eigenheim verfügt über 2 Vollgeschosse und einem lichtdurchfluteten, offenen Wohnbereich.
Außerdem ist der Dachspitz zu einem großen Studio voll ausgebaut und bietet Ihnen zusätzliche Möglichkeiten (Gästezimmer, Büro, Bad, Kinderzimmer etc...) Ein Domizil zum Seele baumeln lassen.
Doppelhaushälfte STYLE 122 m²
HIGHLIGHTS
• 2 Vollgeschosse plus Dachgeschoss
• Dachgeschoss (Studio) kann individuell ausgebaut werden, z. B. zum Schlafzimmer mit Bad und Ankleidezimmer
• Möglichkeit eines abgetrennten Wohnzimmers oder eines offenen Wohnbereichs
• Optimierte Flure für mehr Wohnraumgewinn
• Schornstein möglich (Sonderwunsch)
• Möglichkeit für großen Keller mit Hobbyraum auf über 20 m2 und Technikraum mit ca. 15 m2 (auf Wunsch)
• Dachgeschoss (Studio) kann individuell ausgebaut werden, z. B. zum Schlafzimmer mit Bad und Ankleidezimmer
• Möglichkeit eines abgetrennten Wohnzimmers oder eines offenen Wohnbereichs
• Optimierte Flure für mehr Wohnraumgewinn
• Schornstein möglich (Sonderwunsch)
• Möglichkeit für großen Keller mit Hobbyraum auf über 20 m2 und Technikraum mit ca. 15 m2 (auf Wunsch)
FLÄCHE
Gesamtfläche 125,34 m²
Erdgeschoss 48,95 m²
Obergeschoss 45,53 m²
Dachgeschoss 30,86 m²
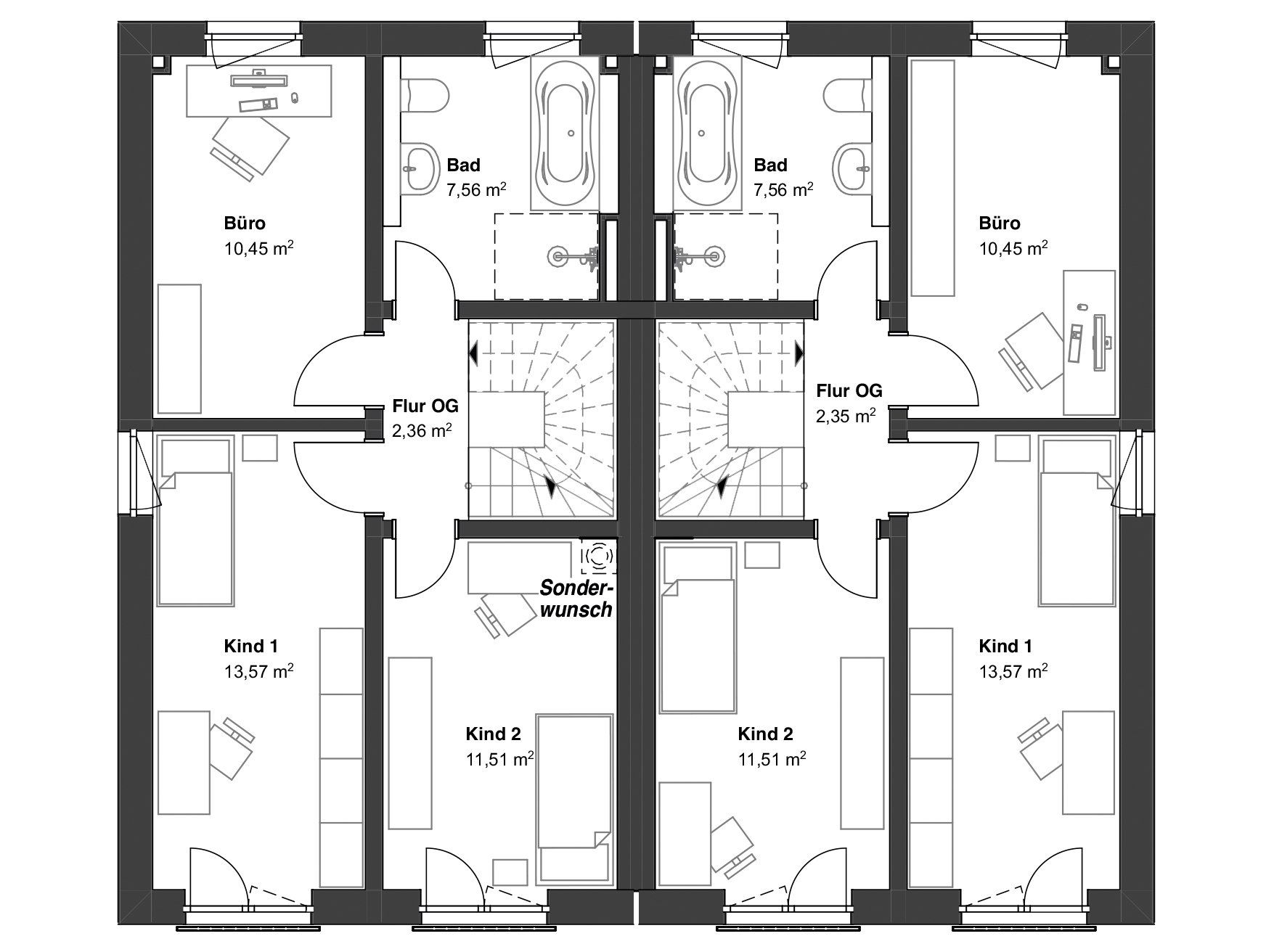
GRUNDRISSE



Beispiel Grundriss
Kurzbeschreibung:
Wohnflächenberechnung:
Flur EG 3,03 m²
Technik/HWR 6,21 m²
Küche 7,48 m²
Wohnen/Essen 29,35 m²
Wohnfläche Dachgeschoss 30,86 m²
Studio 30,86 m²
· 4 Zimmer + Studio
· 125 m² Wohnfläche nach DIN 277
· 10,54 x 5,99 m Grundfläche
Wohnfläche Erdgeschoss 48,95 m²
WC 2,88 m²Flur EG 3,03 m²
Technik/HWR 6,21 m²
Küche 7,48 m²
Wohnen/Essen 29,35 m²
Wohnfläche Obergeschoss 45,53 m²
Büro 10,49m²
Badezimmer 7,61 m²
Flur OG 2,35 m²
Kind 1 13,57 m²
Kind 2 11,51 m²
Badezimmer 7,61 m²
Flur OG 2,35 m²
Kind 1 13,57 m²
Kind 2 11,51 m²
Wohnfläche Dachgeschoss 30,86 m²
Studio 30,86 m²
Grundausstattung:
• Ausgebautes Studio im DG
• Massive Innenwände, auch im DG
• 3-Scheibenverglasung
• Fußbodenheizung
• Ausgebautes Studio im DG
• Massive Innenwände, auch im DG
• 3-Scheibenverglasung
• Fußbodenheizung
• Luft-Wärmepumpe
• Lüftungsanlage mit Wärmerückgewinnung
• Moderne Badlandschaft
• Innenmalerarbeiten inklusive
Nachhaltigkeit:
Wohngesundheit ist uns sehr wichtig. Wir verwenden ökologische und hochwertige Materialien und bauen zukunftsorientiert. Damit Sie auch über Generationen hinweg Freude an Ihrer Immobilie haben.
Abbildungen / Grundrisse enthalten Sonderwünsche. Die Einrichtungsgegenstände und Bodenbelege (außer Bodenbelege im Bad und WC) sind nicht in unseren Leistungen enthalten. Änderungen bleiben vorbehalten. Jedes Haus ist auch mit Keller erhältlich.
• Lüftungsanlage mit Wärmerückgewinnung
• Moderne Badlandschaft
• Innenmalerarbeiten inklusive
Technische Daten:
• Halbgewendelte Treppe (innenliegend)
• Dachform: Satteldach mit 40° Neigung (ohne Kniestock viel
• Dachform: Satteldach mit 40° Neigung (ohne Kniestock viel
Raumgewinn)
• Relativ geringe Wandhöhe (ca. 6 m), somit auf allen
• Relativ geringe Wandhöhe (ca. 6 m), somit auf allen
üblichen Grundstücken möglich
• Außenwände in Ziegel 36,5 cm Lambda 0,09 W/m2K
• Außenwände in Ziegel 36,5 cm Lambda 0,09 W/m2K
Nachhaltigkeit:
Wohngesundheit ist uns sehr wichtig. Wir verwenden ökologische und hochwertige Materialien und bauen zukunftsorientiert. Damit Sie auch über Generationen hinweg Freude an Ihrer Immobilie haben.










