New Style 137
DOUBLE LINE
Behagliches Wohnen für die ganze Familie
Unser Ziegelmassivhaus "New Style" bietet Ihnen viel Platz und individuelle Freiheit. Große Glasflächen im Wohnzimmer lassen viel Licht ins Innere. Über das zentral angelegte Treppenhaus, erreichen Sie im Obergeschoss die beiden Schlafräume und das moderne, mit begehbarer Dusche ausgestattete Badezimmer. Ergänzt wird das Wohnangebot durch das Studio im Dachgeschoss, das zum Beispiel zu einem Schlafzimmer mit Ankleide ausgebaut werden kann.
Doppelhaushälfte New Style 137 m²
Virtueller Rundgang durch das Haus - Bitte klicken
HIGHLIGHTS
• Offene Wohnküche
• Lichtdurchflutete Räume dank großer Fensterfront
• Offenes und freundliches Wohnkonzept
• Begehbare Dusche
• Gäste-WC
• Studio
FLÄCHE
Gesamtfläche 143,23 m²
Erdgeschoss 54,72 m²
Obergeschoss 50,11 m²
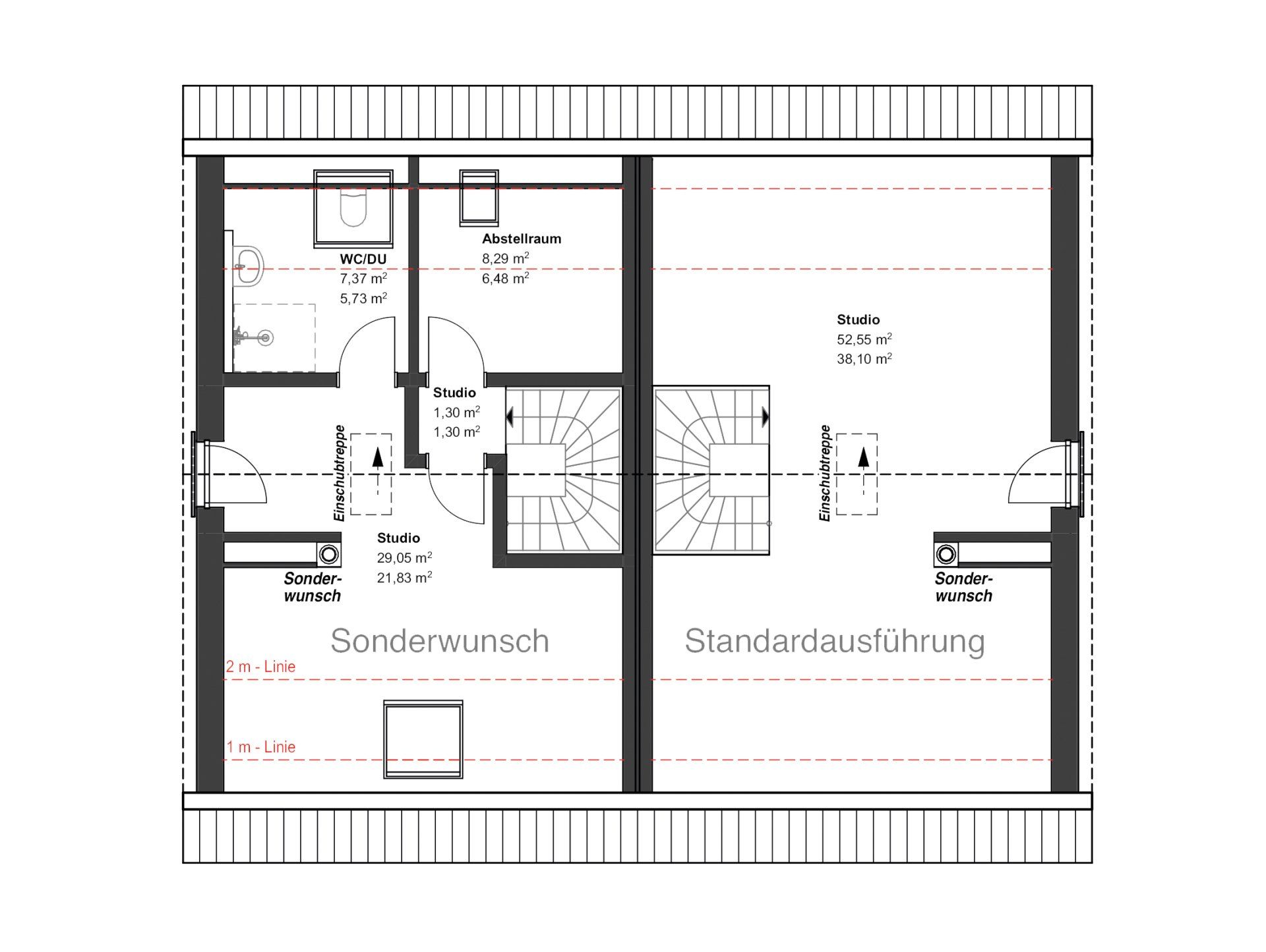
Dachgeschoss 38,10 m²
GRUNDRISSE
Kurzbeschreibung:
Wohnflächenberechnung:
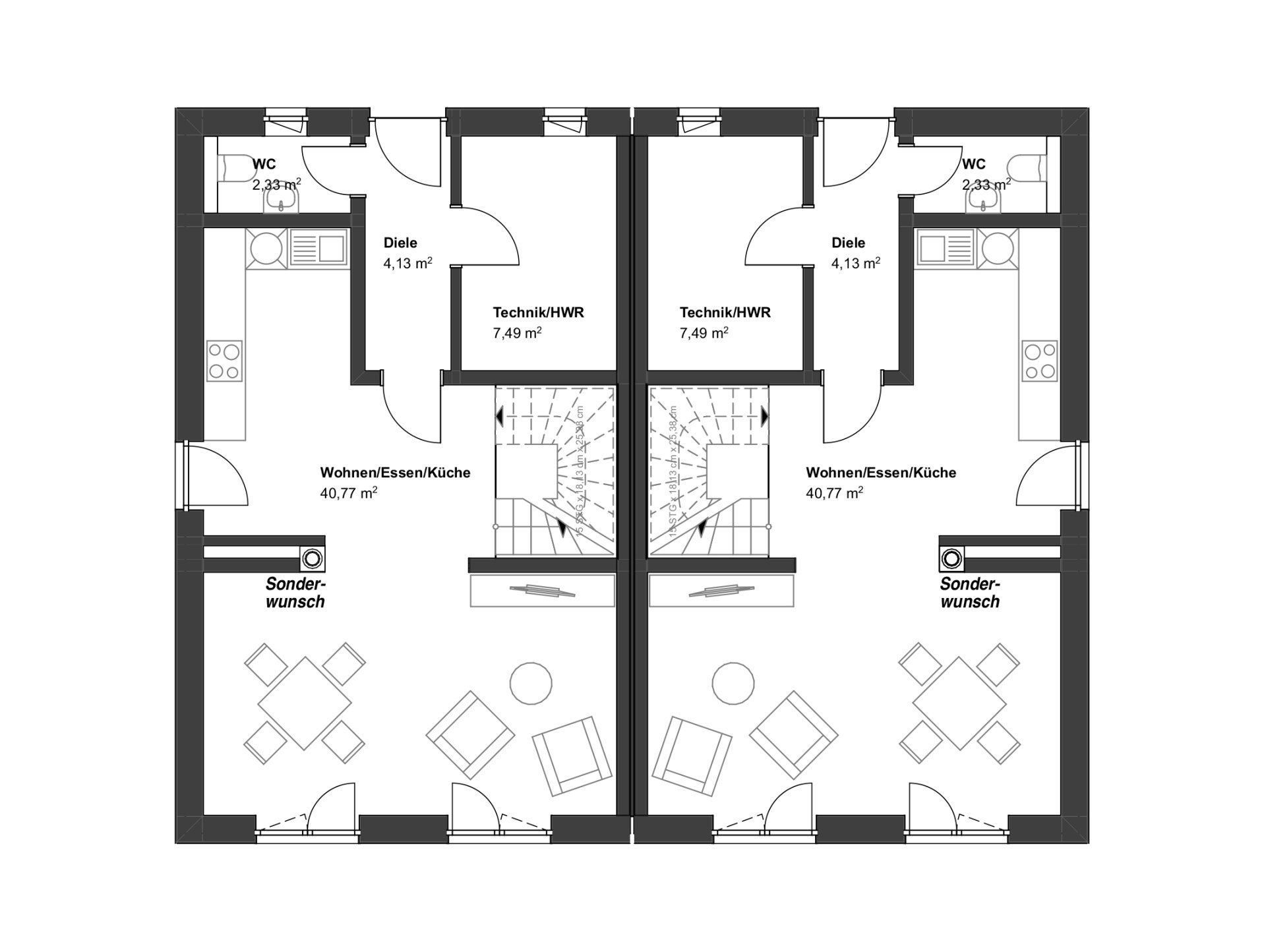
Flur EG 4,13 m²
· 4,5 Zimmer + Studio
· 143,23 m² Wohnfläche nach DIN 277
· 6,49 x 10,49 m Grundfläche
Wohnfläche Erdgeschoss EG 54,72 m²
WC 2,33 m²Flur EG 4,13 m²
HWR 7,49 m²
Wohnen/Essen/Küche 40,77 m²
Wohnen/Essen/Küche 40,77 m²
Wohnfläche Obergeschoss OG 50,41 m²
Badezimmer 6,78 m²
Flur OG 2,63 m²
Kind 1 19,75 m²
Kind 2 21,25 m²
Kind 1 19,75 m²
Kind 2 21,25 m²
Wohnfläche Dachgeschoss DG 38,10 m²
Standardausführung 38,10 m²
Grundausstattung:
• Ausgebautes Studio im DG
• 3-Scheibenverglasung
• Fußbodenheizung
• Ausgebautes Studio im DG
• 3-Scheibenverglasung
• Fußbodenheizung
• Luft-Wärmepumpe
• Lüftungsanlage mit Wärmerückgewinnung
• Moderne Badlandschaft
• Innenmalerarbeiten inklusive
Abbildungen / Grundrisse enthalten Sonderwünsche. Die Einrichtungsgegenstände und Bodenbelege (außer Bodenbelege im Bad und WC) sind nicht in unseren Leistungen enthalten. Änderungen bleiben vorbehalten. Jedes Haus ist auch mit Keller erhältlich.
• Lüftungsanlage mit Wärmerückgewinnung
• Moderne Badlandschaft
• Innenmalerarbeiten inklusive
Nachhaltigkeit:
Wohngesundheit ist uns sehr wichtig. Wir verwenden ökologische und hochwertige Materialien und bauen zukunftsorientiert. Damit Sie auch über Generationen hinweg Freude an Ihrer Immobilie haben.









