Domus 147
DOUBLE LINE
Behagliches Wohnen für die ganze Familie
Ein Ort zum Wohlfühlen, Träume wahr werden lassen. Mit unserer Doppelhaushälfte Domus aus unserer Style Line wird das möglich. Es kombiniert die Vorteile einer Doppelhausbebauung (z. B. verringerte Heizkosten, optimale Gartenflächennutzung) mit viel Platz für Ihre individuelle Freiheit. Das moderne Eigenheim verfügt über 2 Vollgeschosse und einer lichtdurchfluteten Wohnküche mit Erker. Außerdem ist der Dachspitz zu einem großen Studio voll ausgebaut und bietet Ihnen zusätzliche Möglichkeiten (Gästezimmer, Büro, Bad, Kinderzimmer etc...) Ein Domizil zum Seele baumeln lassen.
Doppelhaushälfte DOMUS 147 m²
HIGHLIGHTS
• 2 Vollgeschosse plus Dachgeschoss
• Technikraum im Dachgeschoss
• Technikraum im Dachgeschoss
• Dachgeschoss (Studio) kann individuell ausgebaut werden, z. B. zum Schlafzimmer mit Bad
• Erker für mehr Wohnraumgewinn
• Optimierte Flure für mehr Wohnraumgewinn
• Erker für mehr Wohnraumgewinn
• Optimierte Flure für mehr Wohnraumgewinn
FLÄCHE
Gesamtfläche 147,45 m²
Erdgeschoss 58,44 m²
Obergeschoss 52,74 m²
Dachgeschoss 36,27 m² (abhängig vom Ausbau)
Daten beziehen sich auf den linken Grundriss und können leicht abweichen.
GRUNDRISSE




Kurzbeschreibung:
Wohnflächenberechnung (linkes Haus):
· 4,5 Zimmer + Studio
· 147,45 m² Wohnfläche nach DIN 277
· 6,18 x 11,45 m Grundfläche
Wohnfläche Erdgeschoss EG 58,44 m²
WC 2,03 m² Diele 4,24 m²
Flur 5,43 m²
Flur 5,43 m²
HAR/Speis 1,45 m²
Küche/Essen 22,60 m²
Wohnen 22,69 m²
Wohnfläche Dachgeschoss DG 36,27 m² mit Sonderwunsch
Technik/HWR 9,51 m²
Küche/Essen 22,60 m²
Wohnen 22,69 m²
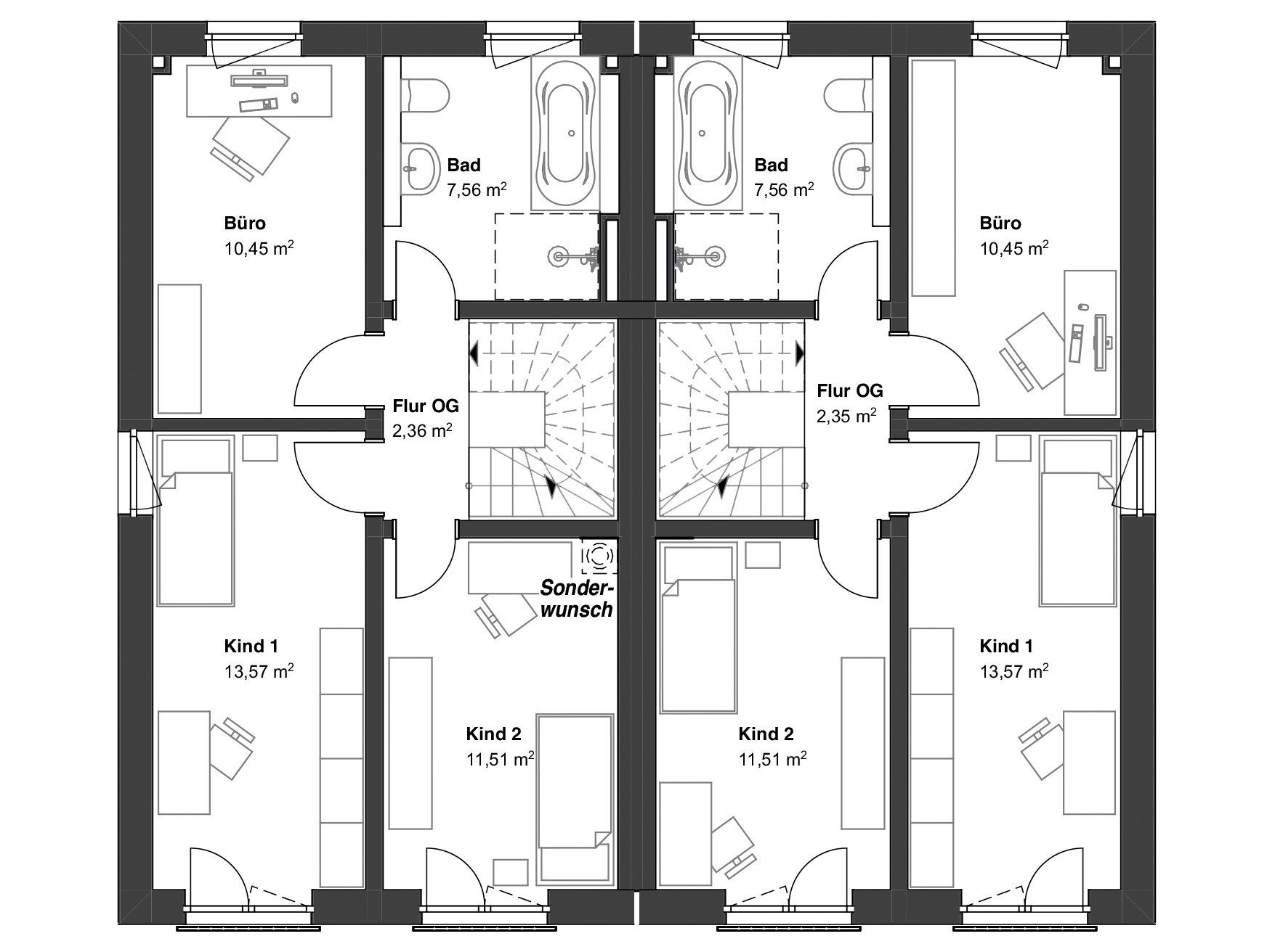
Wohnfläche Obergeschoss OG 52,74 m²
Büro 10,49m²
Badezimmer 9,39 m²
Flur OG 3,26 m²
Kind 1 20,27 m²
Kind 2 18,84 m²
Badezimmer 9,39 m²
Flur OG 3,26 m²
Kind 1 20,27 m²
Kind 2 18,84 m²
Balkon 0,98 m²
Wohnfläche Dachgeschoss DG 36,27 m² mit Sonderwunsch
Technik/HWR 9,51 m²
WC/Dusche 5,76 m²
Flur DG 3,45 m²
Schlafen 17,55 m²
Grundausstattung:
• Ausgebautes Studio im DG
• Massive Innenwände, auch im DG
• 3-Scheibenverglasung
• Fußbodenheizung
• Ausgebautes Studio im DG
• Massive Innenwände, auch im DG
• 3-Scheibenverglasung
• Fußbodenheizung
• Luft-Wärmepumpe
• Lüftungsanlage mit Wärmerückgewinnung
• Moderne Badlandschaft
• Innenmalarbeiten inklusive
Nachhaltigkeit:
Wohngesundheit ist uns sehr wichtig. Wir verwenden ökologische und hochwertige Materialien und bauen zukunftsorientiert. Damit Sie auch über Generationen hinweg Freude an Ihrer Immobilie haben.
Abbildungen / Grundrisse enthalten Sonderwünsche. Die Einrichtungsgegenstände und Bodenbelege (außer Bodenbelege im Bad und WC) sind nicht in unseren Leistungen enthalten. Änderungen bleiben vorbehalten. Jedes Haus ist auch mit Keller erhältlich.
• Lüftungsanlage mit Wärmerückgewinnung
• Moderne Badlandschaft
• Innenmalarbeiten inklusive
Technische Daten:
• 2 Vollgeschosse
• Dachform: Satteldach mit 42° Neigung
• Dachform: Satteldach mit 42° Neigung
• Außenwände in Ziegel 36,5 cm Lambda 0,09 W/m2K
Nachhaltigkeit:
Wohngesundheit ist uns sehr wichtig. Wir verwenden ökologische und hochwertige Materialien und bauen zukunftsorientiert. Damit Sie auch über Generationen hinweg Freude an Ihrer Immobilie haben.









